3 model overall_2407 A.JPG
1 existing front elev_2398.JPG
4 model rear_2419 A.JPG
5 model rear view_2425 A.JPG
7 model view rear cutaway_2458.JPG
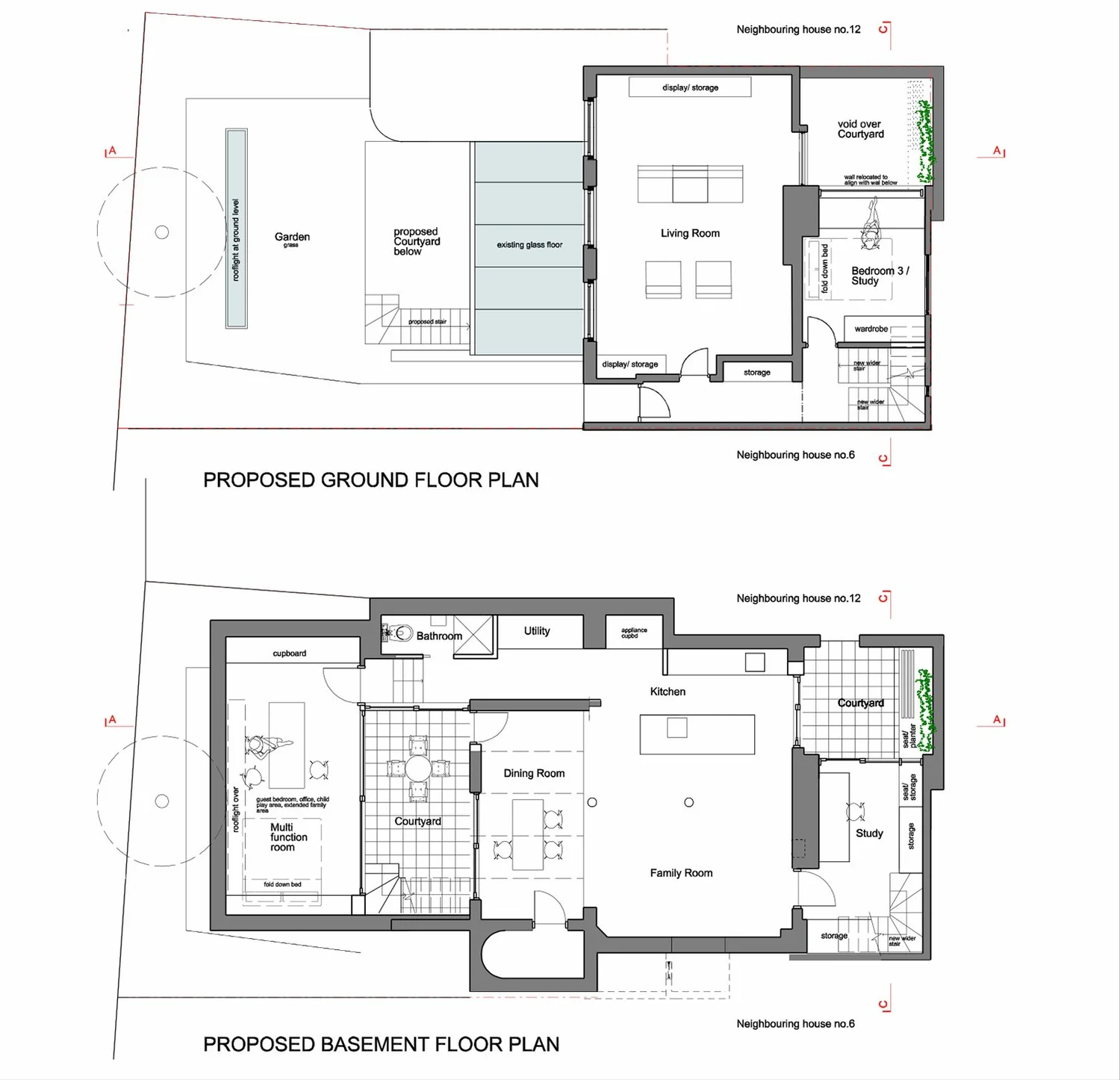
Proposed upper plans.jpg
Proposed lower plans.jpg
Existing section AA 1.jpg
Proposed section AA 1.jpg
2a existing view_2378.JPG
prev / next