4b. After 10 void looking up.jpg
4b. After 6 Study.jpg
4b. After 7 Study.jpg
New_End-5485.jpg
4b. After 4 kitchen.jpg
New_End-5632.jpg
New_End-5497.jpg
New_End-5541.jpg
4b. After 9 Terrace.jpg
4b. After 1 front.jpg
Section AA.jpg
Ground plan.jpg
First plan.jpg
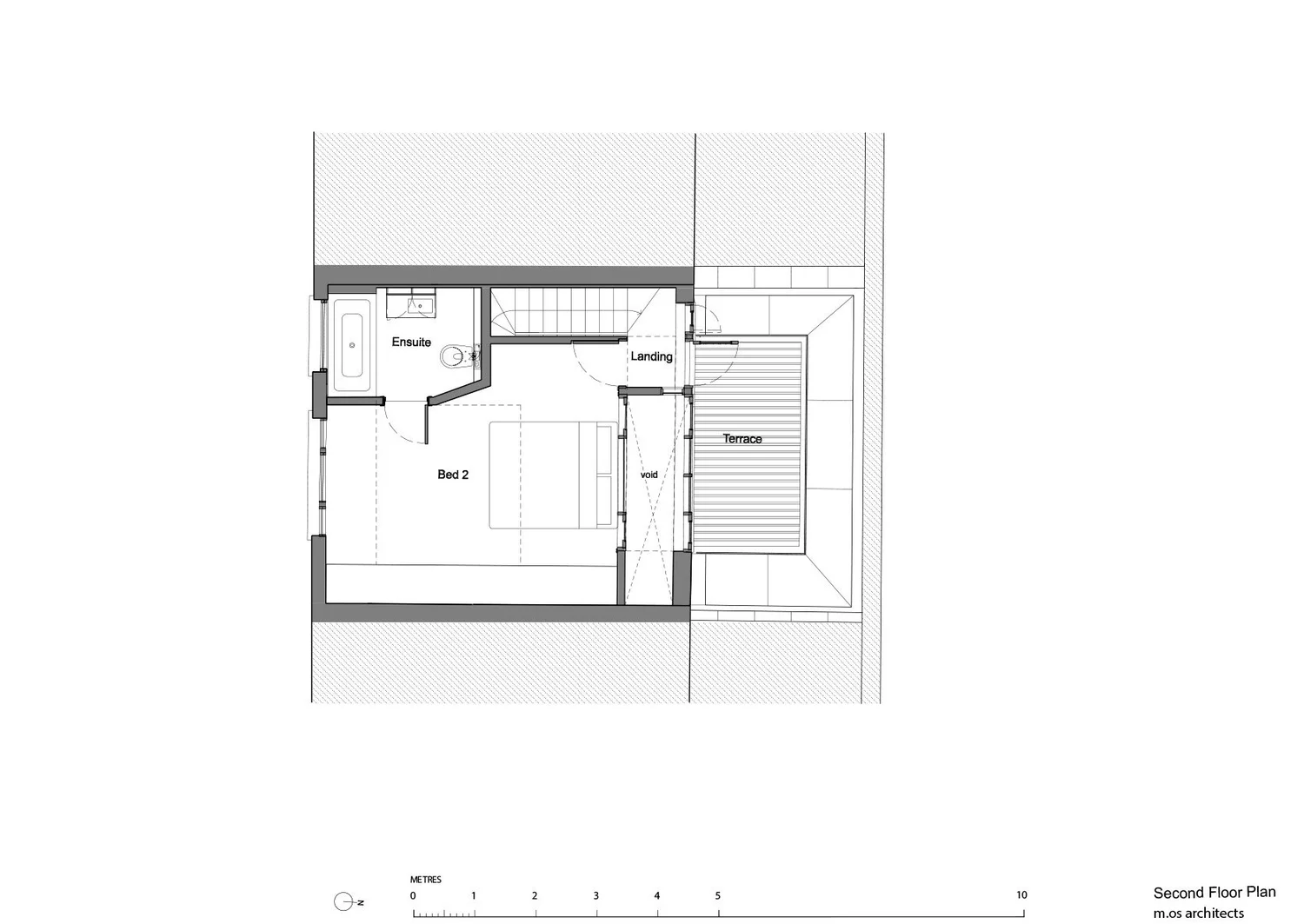
Second plan.jpg
Site plan.jpg
prev / next